Wohnhaus Morgenhalde

3215

Wohnhaus Morgenhalde
Ballwil

Ein bestehendes Bauernhaus mit angebautem Stall wird in zwei Wohneinheiten weitergebaut. Der Entwurf setzt auf maximalen Substanzerhalt, wenige präzise Eingriffe und eine zurückhaltende energetische Ertüchtigung; aussen ersetzen Holzschindeln die alte Eternitverkleidung, ein grosses Eckfenster markiert den gezielten zeitgenössischen Akzent.

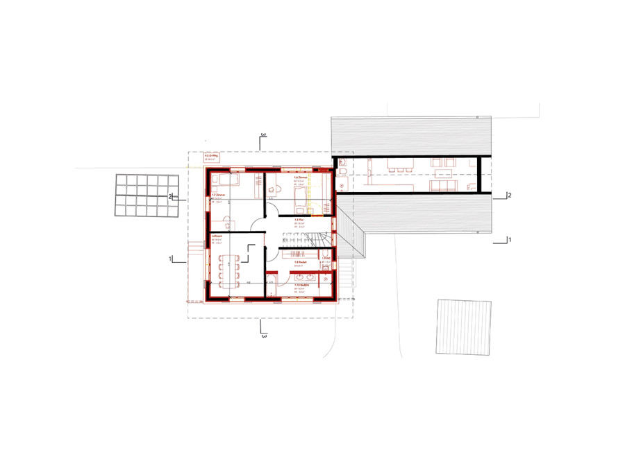
Die Bestandsanalyse zeigt eine robuste Tragstruktur, die sich für eine Umnutzung eignet. Anstelle eines Abrisses wird das Haus mit minimalen, klar definierten Eingriffen so angepasst, dass heutige Anforderungen an Wohnen, Komfort und Energieverbrauch erfüllt werden – die vorhandene räumliche Ordnung bleibt dabei weitgehend erhalten.

Die Fassade wird in ihrem Grundcharakter beibehalten; neue Öffnungen folgen dem vorhandenen Raster und werden nur dort ergänzt, wo es funktional Sinn ergibt. Die frühere Eternitverkleidung weicht unbehandelten Holzschindeln, wodurch Materialität und Ausdruck wieder näher an die regionale Bautradition rücken; einzig das grosse Eckfenster setzt eine bewusste, aber zurückhaltende Transformation.

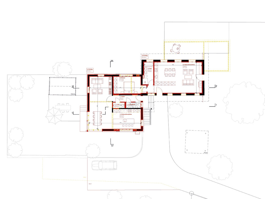
Innen werden wenige, wirkungsvolle Anpassungen vorgenommen: Der Wohn- und Essbereich erhält mehr Raumhöhe und Licht, während die historischen, niedrigeren Zimmer ihre intimere Atmosphäre behalten. Im ehemaligen Stall entsteht eine Kleinwohnung; durch das Entfernen des Heubodens gewinnt der Raum deutlich an Qualität und Belichtung.

Die energetische Ertüchtigung erfolgt dort, wo sie am meisten bringt, ohne den Charakter zu überformen; Materialien werden aufgearbeitet statt verkleidet, und die ländliche Umgebung bleibt – bis auf notwendige Anpassungen – in ihrem robusten Ausdruck bestehen. So entsteht ein Haus, das seine Geschichte lesbar hält und zugleich alltagstauglich für die Zukunft macht.